CRESCENDO INTRODUCTION
High Efficiency in a reasonable size, with good bandwidth and rich sound. SET friendly. Unfortunately horns with any bandwidth are the size of a fridge. So we have developed a horn ribbon based system which achieves our goals. The wide band horn ribbon covers from about 600hz to 23khz. The special carbon fiber reinforced paper cone cast frame 8” Driver covers below that, using 1st order (phase-coherent) crossovers. The 600Hz Crossovers uses extreme quality parts: all film caps, oil paper and copper foil inductors, Silver Wire, Kiwame Resistors etc. The Systems sensitivity is an honest 98db/w (100db in room as specified by many speaker manufacturers), nominally 8 ohms. The box is 30L and covers from about 60hz to 23khz in room. The Crescendo can be used with many commercial Subwoofers to extend the low frequency response. The -6dB coverage angle for the Crescendo HF 50 degrees horizontal and 30 degrees vertical. Such controlled dispersion over such a wide frequency range ensures that even in acoustically difficult rooms and the midrange and treble remain from excessive reflections and room reverb.


CRESCENDO LOW FREQUENCY DRIVER
Diameter:
Cone Material: Aluminium Alloy
Impedance: 6Ohm
Power Handling: 50W continous 100W programme
Xmax: 3mm peak-peak
Re: 5.2 Ohm
Moving Mass: 19.5 gramm
Fs:90Hz
Qts: 0.45
Spl (2.83V/1m): 98db
Rec. Enclosure: 30 Liter Net Volume
8″(210mm) to basket rim edge.
70 Hz Port Tuning (110cm2 port crossection, 13cm port length)
CRESCENDO HIGH FREQUENCY DRIVER
Dimensions:
Waveguide Material: 220mm X 275mm Aluminium Alloy
Diaphragm Material: Kapton
Ribbon Surface: 91cm2
Fs: 480Hz
Impedance: 6Ohm
Power Handling: 60W
Spl (2.83V/1m): continous 120W programme 102db
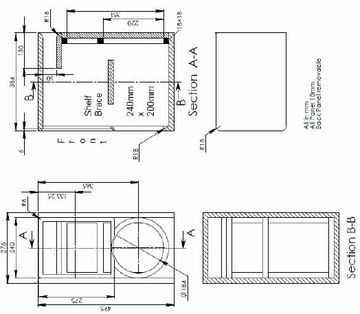
CRESCENDO ENCLOSURE DESIGNS
The Enclosure for the Crescendo System can be arranged quite wide arrangements as long as the volume and tuning is preserved.Here the design we use and recommend. It uses a simple box with a large cross-section port, to avoid compression and port noise.The material should be void-free plywood, 18mm thick. Of course, Corian or Natural stone or solid stave-glued hardwood, or bamboo may also be used.Glue with good filling properties is recommended for any of the wood materials, Grip-Fill (the professional version of liquid nails) or similar work well, as can resin based glues. Stone requires special glues.The Back Panel is kept removable to allow the low frequency drivers to be mounted from behind. Unless you wish to use an external enclosure for your crossover building it on the removable back panel allows easy access for modification.We suggest to first try the box without any stuffing or damping material. All the resonance modes caused by the enclosure dimensions are high enough in frequency to not appear within the operating bandwidth of the low frequency driver, mainly due to the low crossover point
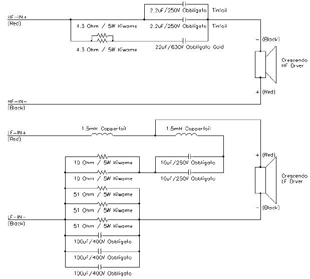
CRESCENDO CROSSOVER
The 3 x 100uF/400v caps and the parallel resistors from LF driver (-) to the binding post are optional.